A Cozy 2-Bedroom Granny Flat
Designed for comfortable independent living in Lugarno, this 52m² granny flat offers everything you need - two bedrooms, open-plan living, and a modern kitchen - all in a beautifully compact footprint.

A Home That Works for You
This granny flat was designed with real life in mind. Whether it is for aging parents who want to stay close, an adult child saving for their first home, or generating rental income - this design adapts to your needs.
The open-plan layout creates a sense of spaciousness, while the two bedrooms provide flexibility. The kitchen flows naturally into the dining and living areas, making everyday living effortless.
With 2.7m ceilings and carefully positioned windows, every room feels bright and airy - not like a cramped add-on, but a proper home.

Every Room Thoughtfully Designed
Open-Plan Living
14m²A bright, welcoming space perfect for relaxing or entertaining guests. Large windows flood the room with natural light.
Kitchen & Dining
12m²Efficiently designed kitchen with ample bench space flows into a cozy dining area - ideal for everyday meals.
Main Bedroom
11m²A peaceful retreat with built-in robe and natural light. Comfortably fits a queen bed with room to move.
Second Bedroom
9m²Versatile space perfect as a guest room, home office, or hobby room. Includes built-in robe storage.
Bathroom
4m²Central bathroom with modern fittings, accessible from the hallway. Includes shower, toilet, and vanity.
See the Design
Explore the concept drawings to understand how each space connects and flows.

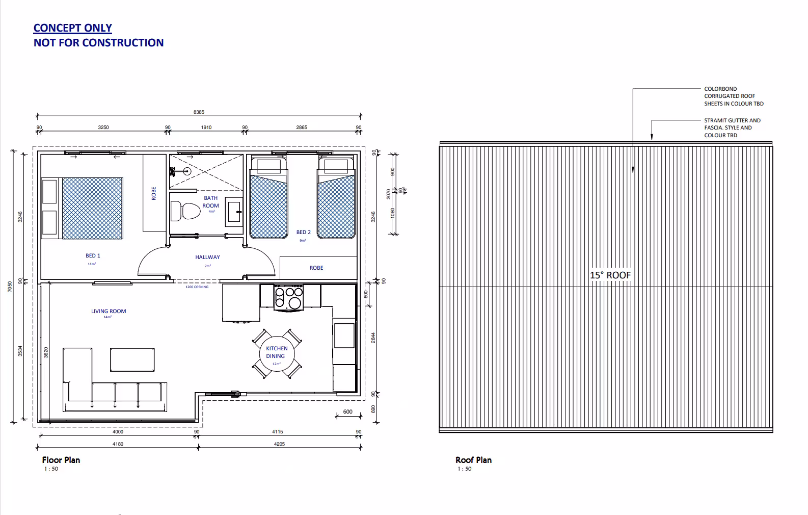
Floor & Roof Plans
Floor plan showing room layout and roof plan

Elevations
All four elevation views of the granny flat

3D Views
3D visualization showing interior layout and exterior perspective
Built to Last, Easy to Maintain
This design specifies low-maintenance, durable materials that will look great for years to come.
Colorbond Roofing
15 degree pitch with corrugated sheets - durable and weather-resistant
Hardie Plank Cladding
Classic weatherboard look with modern durability and minimal upkeep
2.7m Ceilings
Higher than standard ceilings create an open, airy feel
Customisable Finishes
Window styles, door colours, and internal finishes tailored to your taste

Why a Granny Flat?
More than just extra space - it is about creating opportunities for your family and lifestyle.
Independent Living
Everything you need in one compact, well-designed space. Perfect for aging parents, adult children, or rental income.
Natural Light
Thoughtfully positioned windows bring sunshine into every room, creating a warm and inviting atmosphere.
Close to Family
Stay connected with loved ones while maintaining your own private, self-contained home in the backyard.
Low Maintenance
Quality Colorbond roofing and Hardie Plank cladding means less upkeep and more time enjoying your home.
Thinking About a Granny Flat?
Every backyard is different. Let's chat about your site, your needs, and create a design that works perfectly for your family.